Skip To Content

4603 Sloan Rd

Nashville, TN 37209
  • $595,000
  • STATUS: Active
  • ON SITE: 207 Days
  • MLS #: RTC2820546
UPDATED: 61 min ago
$595,000
  • 0
    BEDS
  • 0.18
    ACRES
  • 0
    BATHS
  • 0
    1/2 BATHS
Neighborhood:
Type:
Vacant Land / Lots
County:

School Information

Description

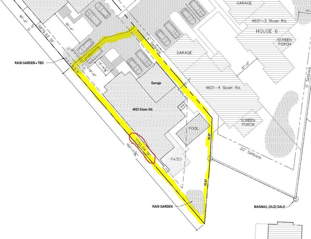
Spacious lot to build your custom home in the heart of sylvan park. Walkable to all the neighborhood amenities; greenway, golf course, restaurants, coffee shop and organic grocer. Space for a pool. Buyer required to contract with Developer/GC for vertical construction. Architectural review and restrictions apply. See listing at 4601-2 Sloan road as example of build quality and design. Contact Developers with any questions - G - 615-804-1844 or Yancy 615-372-4232. 50+ years combined experience in development / construction. Site plan example only. Full custom options available

Monthly Payment Calculator



Realtracs Solutions logoProperties marked with the IDX logo are provided courtesy of the RealTracs Internet Data Exchange Program. Some or all of the listings may not belong to the firm whose website is being visited (Ashley Claire Real Estate - Benchmark Realty, 615-454-2703). IDX information © 2025 MTRMLS, Inc. Information is believed to be accurate but not guaranteed by the MLS or Ashley Claire Real Estate - Benchmark Realty. IDX information is provided exclusively for consumers' personal, non-commercial use and may not be used for any purpose other than to identify prospective properties consumers may be interested in purchasing. Data last updated 2025-11-15T15:07:25.

Based on information submitted to the MLS GRID as of 2025-11-15T15:07:25. All data is obtained from various sources and may not have been verified by broker or MLS GRID. Supplied Open House Information is subject to change without notice. All information should be independently reviewed and verified for accuracy. Properties may or may not be listed by the office/agent presenting the information.
Click here for MLS GRID DMCA Notice
www.acrestate.com/homes/162794931
Print Image

4603 Sloan Rd Nashville, TN 37209

  • Price: $595,000
  • Status: Active
  • On Site: 207 Days
  • Updated: 61 min ago
  • MLS #: RTC2820546
0
Beds
0
Baths
0
½ Baths
0.18
Acres
Neighborhood:
Homes At 4605 Sloan
County:
Davidson
Elementary School:
Sylvan Park Paideia Design Center
Middle School:
West End Middle School
High School:
Hillsboro Comp High School
Property Description
Spacious lot to build your custom home in the heart of sylvan park. Walkable to all the neighborhood amenities; greenway, golf course, restaurants, coffee shop and organic grocer. Space for a pool. Buyer required to contract with Developer/GC for vertical construction. Architectural review and restrictions apply. See listing at 4601-2 Sloan road as example of build quality and design. Contact Developers with any questions - G - 615-804-1844 or Yancy 615-372-4232. 50+ years combined experience in development / construction. Site plan example only. Full custom options available
Exterior Features

Lot Features ClearedLevelPrivate Lot Size Dimensions 60x155 Parking Total 0 Road Frontage Type City Street Road Surface Type Asphalt Topography ClearedLevelPrivate View YN No Waterfront YN No

Interior Features

Cooling YN No Heating YN No

Property Features

Association Amenities SidewalksUnderground Utilities Association Fee 135 Association Fee Frequency Monthly Association Fee Includes Maintenance StructureMaintenance Grounds Association Fee2 300 Association Fee2 Frequency One Time Association YN Yes Building Area Total 0 Buyer Financing Conventional Inclusions Land Only Lot Size Area 0.18 Pool Private YN No Property Attached YN No Senior Community YN No Special Listing Conditions Standard Tax Annual Amount 1627 Zoning R6

Realtracs Solutions logo Offered by Synergy Realty Network, LLC: . Copyright 2025 RealTracs, Inc. Information Is Believed To Be Accurate But Not Guaranteed. Listings courtesy of Realtracs MLS as distributed by MLS GRID.


Realtracs Solutions logoProperties marked with the IDX logo are provided courtesy of the RealTracs Internet Data Exchange Program. Some or all of the listings may not belong to the firm whose website is being visited (Ashley Claire Real Estate - Benchmark Realty, 615-454-2703). IDX information © 2025 MTRMLS, Inc. Information is believed to be accurate but not guaranteed by the MLS or Ashley Claire Real Estate - Benchmark Realty. IDX information is provided exclusively for consumers' personal, non-commercial use and may not be used for any purpose other than to identify prospective properties consumers may be interested in purchasing. Data last updated 2025-11-15T15:07:25.

Based on information submitted to the MLS GRID as of 2025-11-15T15:07:25. All data is obtained from various sources and may not have been verified by broker or MLS GRID. Supplied Open House Information is subject to change without notice. All information should be independently reviewed and verified for accuracy. Properties may or may not be listed by the office/agent presenting the information.
Click here for MLS GRID DMCA Notice
 
Logo
Ashley Claire Real Estate - Benchmark Realty
2500 21st Ave S
Nashville TN, 37212